
Kaynad B.V. I Prefab Woningen
Onze prefab woningen worden binnen 2–8 weken geleverd, zijn duurzaam, energiezuinig en volledig afgestemd op jouw woonwensen. Gemaakt in onze eigen fabriek in Weert, zonder bouwstress – direct klaar voor gebruik.
Waarom kiezen voor een prefab woning van Kaynad?
Bij Kaynad Prefab Modulair Bouw B.V. geloven we dat een woning bouwen snel, duurzaam en zorgeloos kan. Onze prefab woningen combineren modern design met hoogstaande bouwkwaliteit – volledig op maat, volledig instapklaar. Ontdek waarom steeds meer mensen voor Kaynad kiezen;
Duurzaam & energiezuinig wonen
Onze woningen voldoen aan de strengste BENg-normen en zijn standaard voorzien van hoogwaardige isolatie. Optioneel zijn zonnepanelen en plafondverwarming beschikbaar.
Architectonisch maatwerk
Onze eigen architecten ontwerpen elke woning op maat – met 3D-visualisaties, afwerking naar wens en maximale indelingsvrijheid.
Binnen 2–8 weken sleutelklaar geleverd
Geen maandenlange verbouwing: jouw woning wordt in onze fabriek geproduceerd en binnen één dag op locatie geplaatst.
Productie in eigen fabriek in Weert
Dankzij gecontroleerde productieprocessen in onze fabriek garanderen wij constante kwaliteit, korte levertijden en minimale bouwstress.


Volledige ontzorging van A tot Z
Van ontwerp en vergunning tot fundering en oplevering: wij regelen alles. Eén aanspreekpunt, heldere communicatie en geen verborgen kosten.
Bekijk onze prefab woningmodellen en kies wat bij jou past
Ontdek onze diverse prefab woningen – van compact tot ruim – allemaal ontworpen voor comfort en duurzaamheid.
Vul het formulier in en ontvang vrijblijvend een offerte op maat voor jouw ideale woning.
Telefoon
+31 (0) 495 23 98 00
info@kaynad.com
Prefab Woning Modellen
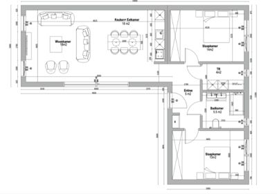
241 m2






Deze ruime woning van 241 m² biedt een lichte leefruimte met open keuken, aparte kantoorruimte en meerdere slaapkamers – perfect voor wie stijlvol én functioneel wil wonen.
232 m2
Deze stijlvolle woning van 232 m² beschikt over een open leefruimte, praktische werkplekken en comfortabele slaapkamers – ideaal voor wie modern en efficiënt wil wonen.
179 m2
Deze eigentijdse woning van 179 m² heeft een ruime leefruimte met L-vormige keuken, comfortabele zithoek en doordachte indeling voor dagelijks gemak.
162 m2






Deze moderne woning van 162 m² biedt een open leefruimte, luxe keuken en meerdere comfortabele slaapkamers – verkrijgbaar met verschillende gevelopties.
153 m2
Deze woning van 153 m² combineert een open indeling met twee badkamers, meerdere slaapkamers en een moderne keuken voor maximaal wooncomfort.
140 m2
Deze instapklare woning van 140 m² heeft een slimme indeling met twee slaapkamers, een open keuken met bartafel en een volledig afgewerkte badkamer.
122 m2






Moderne prefab woning met 3 slaapkamers, open keuken, luxe badkamer en apart toilet. Sleutelklaar opgeleverd en energiezuinig.
108 m2 type A
Moderne woning met open leefruimte, 2 comfortabele slaapkamers, een stijlvolle badkamer en apart toilet. Perfect voor wie praktisch én elegant wil wonen.
108 m2 type B
Deze woning biedt een gezellige woonkamer, open keuken met kookeiland, 2 slaapkamers en een praktische badkamer met apart toilet.
87 m2






Deze stijlvolle prefab woning biedt een lichte leefruimte, 2 slaapkamers, open keuken met bartafel, en een moderne badkamer. Verkrijgbaar in steenstrip, hout of pleisterwerk.
82 m2
Prefab woning met 2 slaapkamers, open leefruimte, moderne keuken met bartafel, ruime eethoek en praktische technische ruimte. Beschikbaar met houten, stenen of gepleisterde gevels.
77 m2
Compacte prefab woning met 2 slaapkamers, open keuken, ruime woonkamer, moderne badkamer en aparte technische ruimte. Verkrijgbaar in hout, steen of pleisterwerk.
56 m2






Deze stijlvolle prefab woning biedt een lichte leefruimte, 2 slaapkamers, open keuken met bartafel, en een moderne badkamer. Verkrijgbaar in steenstrip, hout of pleisterwerk.
54 m2
Prefab woning met 2 slaapkamers, open leefruimte, moderne keuken met bartafel, ruime eethoek en praktische technische ruimte. Beschikbaar met houten, stenen of gepleisterde gevels.
50 m2
Compacte prefab woning met 2 slaapkamers, open keuken, ruime woonkamer, moderne badkamer en aparte technische ruimte. Verkrijgbaar in hout, steen of pleisterwerk.

Kies de woning die bij u past en ontvang vrijblijvend een offerte.
Ontdek onze duurzame prefab woningen en kies het model dat aansluit bij uw wensen. Vraag vandaag nog een prijsopgave aan – geheel vrijblijvend en zonder verplichtingen.
Kaynad B.V. I Prefab Bouwen
Bij Kaynad Prefab Modulair Bouw B.V. ontwerpen en bouwen wij hoogwaardige prefab woningen die voldoen aan de BENG-normen. Volledig op maat gemaakt, duurzaam geïsoleerd en binnen 2–8 weken geleverd en geplaatst.
Neem contact met ons op;
Ontvang updates over Kaynad direct in je inbox:
info@kaynad.com
+31 (0) 495 23 98 00
© 2025. All rights reserved.
www.kaynad.com
